Please Call For Address, Ocala, FL 34472

$279,900
  • Please Call For Address, Ocala, FL 34472 Main Photo

2 Total Photos [Click to View All]

New to the Market Active
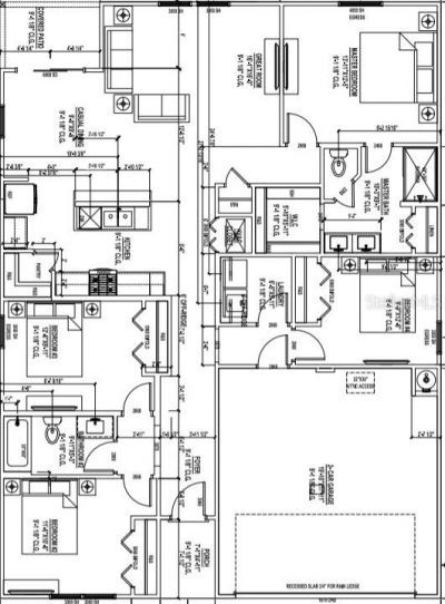
BEDS4 BATHS2 full SQUARE FEET1,550 MLS#OM721900
STATUSActive PROPERTY TYPEResidential - Single Family SUBDIVISIONVICTORIA HEIGHTS

Property Description

Under Construction. INVESTMENT OPPORTUNITY! Brand NEW construction by Southern Impression Homes @ CLEARANCE PRICING! This home qualifies for a special 3.5% interest rate (4.746% APR) along with 2 FREE years of professional property management and RENT PROTECTION included, providing added confidence and convenience for investors. Enjoy the peace of mind that comes with new construction, builder warranties, modern features, and CASH FLOW. Builder offering limited-time incentives and special financing programs - ask your REALTOR for complete details. FREE INVESTMENT PLAYBOOK - Contact Builder!**House Hacking Programs Available!**Home is currently under construction. Photos are of a similar or previously completed unit and are for illustrative purposes only. Features, finishes, and layout may vary.

| MLS# OM721900

This single family home located at , Ocala, FL 34472 is currently listed for sale with an asking price of $279,900. This property was built in 2026 and has 4 bedrooms and 2 full baths with 1550 sq. ft. is located in the VICTORIA HEIGHTS subdivision. Search VICTORIA HEIGHTS real estate on www.rebrokertalk.com today.

Property Features

Property Type: Residential - Single Family
Cooling: Central Air
Garage: 2 car attached
Heating: Central
Lot Size: 0.25 Acres
Roof Type: Shingle
Stories: 1.0
Taxes: $292
Year Built: 2026

Amenities

Kitchen/Family Room Combo
None

Feature Descriptions

Appliances: Cooktop, Microwave, Refrigerator
Builder: SI Homes
Days on Site: 1
Exterior: Frame
Flood Zone Code: AE
Flooring: Luxury Vinyl
Foundation: Slab
Home Warranty Y/N: No
Listing Terms: Cash, Conventional, FHA, Other, VA Loan
Lot Dimensions: 0.25
Model: 1550
Other Equipment: None
Ownership: Fee Simple
Property Attached Y/N: No
Property Sub-Type: Single Family Residence
Sewer: Septic Tank
Showing Instructions: Call Listing Agent, Call Listing Office
Special Sale Provisions: None
Utilities: Cable Available, Electricity Available
Water: Public
Water Access Y/N: No
Zoning: R1

Listed By / Shown By

Listed By

Agency Name: SUNCOAST PROPERTY MANAGEMENT L
Agency Contact: 904-667-4459

Shown By

Agency Title: Florida Executive Realty - Agent Recruiting
Agency Phone: 813-908-8500

IDX logo

Estimate Your Payment

Estimated Payment

$ 728.91 per month $622.94 Principal & Interest $24.33 Property Tax $81.64 Homeowner's Insurance

Change Payment Information

%
years/fixed
yearly
yearly (est.)
(Payments are an estimate and may vary by lender)

Login to My Homefinder

Pixel